Why Design 4 services?
Over 20 Years of understanding & experience.
-
Onsite Floorplan Consultations
We have a dedicated team of onsite floor planners, who have a wealth of experience in the real estate industry creating accurate, meticulously drawn drawings.

-
Black & White Floorplans
Clean, Effective floorplans with all inclusions. This product gives prospective purchasers a full representation of the property and a better idea of it's suitability to their needs.

-
Coloured Floorplans
Colour can be used to emphasise different sections of homes and features. Customised colour also gives you the flexibility on colour to cooperate with the company branding.

Even more reasons to choose us?
-
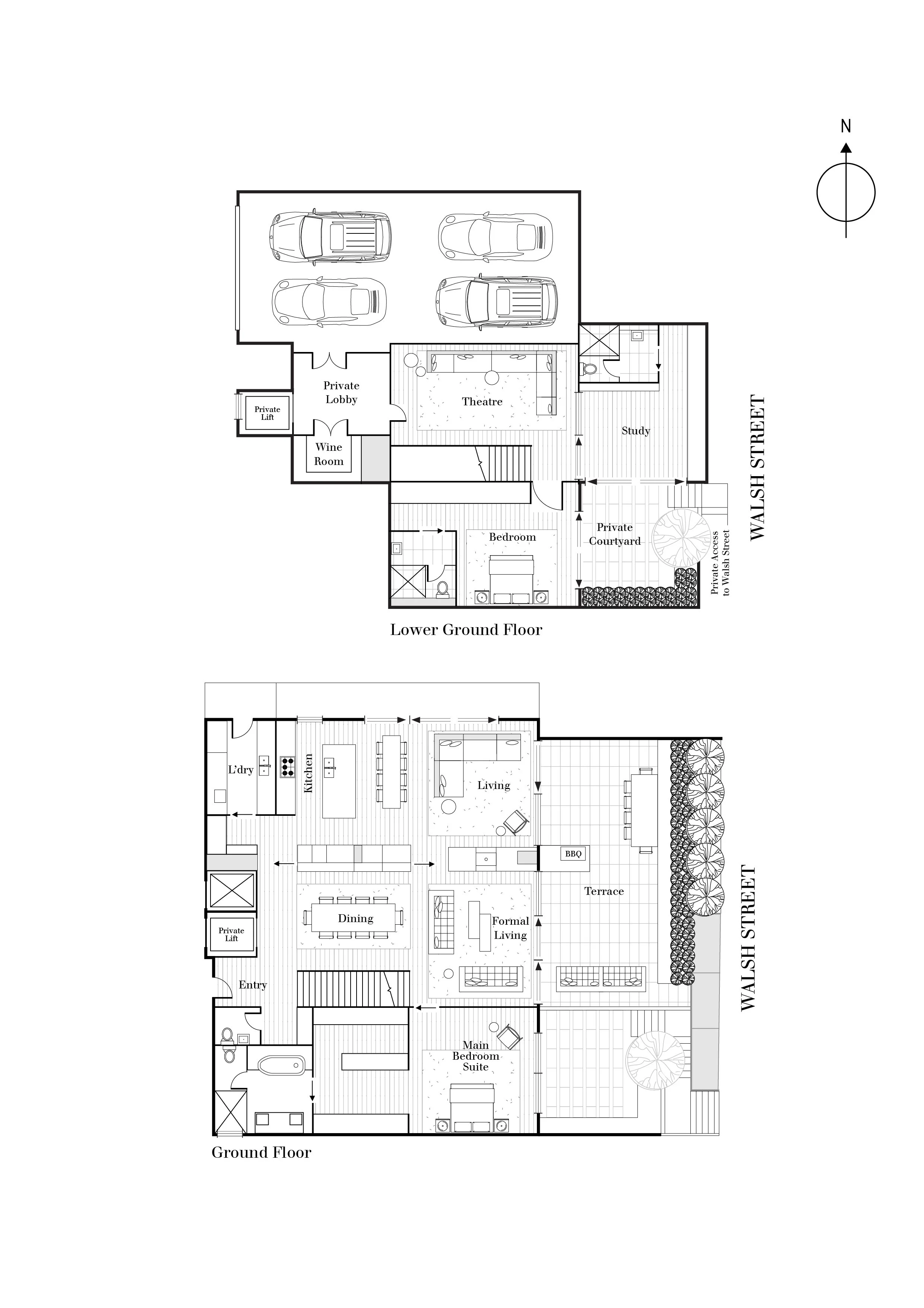
Premium Textured Floorplans
Textured floorplans can take your real estate campaign to the next level.
Textured floorplans can include 2d objects with shading, shadowing with intense realism. Imagery that reflects real life look of tiling, wood flooring, paving, trees and other common household décors.
-
Landbox & Sitemap / Overlay / Commercial
Landbox outlines the dimensions and street positions within a block of land.
Backgrounds can include various colours or your selected image.
Customizable to your styles & colours.
-
3D Floorplans
3d dimensional floorplans offer that extra feel and touch of reality.
Giving the buyer an in-depth and comprehensive look of how the home is laid out and furnished.

